ChaletGolden Bear






Chalet Golden Bear (Peut accueillir 18 personnes)
Le plus spacieux des Chalets Zenya, le Chalet Golden Bear est un chalet majestueux en bois rond situé au sein du prestigieux Domaine du Lac Fiddler, à la sortie de Morin Heights, dans la Vallée de Saint-Sauveur. Le chalet est situé sur un grand terrain boisé privé, d’une superficie de plus de 70,000 pieds carrés. À l’abri des voisins et des regards indiscrets, vous serez assurés d’y trouver tranquillité et intimité et de profiter pleinement de vos vacances! Relaxez en toute sérénité en profitant de notre spa et de notre sauna sec extérieur (disponibles à l’année longue) et de nombreuses activités à proximité. Notez que la piscine creusée extérieure chauffée est ouverte du 1er juin à fin septembre.
Ce chalet très spacieux comprend 6 chambres à coucher, 3 salles de bains complètes et 1 foyer au bois intérieur. Il peut loger aisément jusqu’à 18 personnes. La cuisine est équipée d’appareils électroménagers en acier inoxydable, incluant un lave-vaisselle et un four micro-ondes. D’autres commodités telles que la télévision par satellite, Wi-Fi haute vitesse Starlink illimité, une table de billard (convertible en table de ping pong), une laveuse et une sécheuse sont également fournies. Un coin feu extérieur avec des chaises confortables pour relaxer est accessible durant les 3 saisons.
Installations 100% privées au Chalet Golden Bear (non partagées):
- Piscine creusée extérieure chauffée (de début juin à fin septembre)
- Spa et sauna sec extérieur (disponibles à l’année)
Nouveau: en option lors de la réservation, vous avez maintenant accès aux activités du Centre récréatif du Domaine du Lac Fiddler, situé à 5-10 minutes de marche du chalet.
- Disponible à l’année longue: piscine intérieure chauffée (commune) et gym tout équipé flambant neuf!
- En hiver : accès à la patinoire extérieure, prêt de raquettes pour la randonnée, glissades pour les enfants.
- En été : accès à la piscine extérieure chauffée du Centre Récréatif (commune), au quai et aux embarcations (kayaks, canots, planches à pagaie et pédalos), terrains de tennis et jeux extérieurs pour les enfants.
Un endroit idéal pour vos évènements spéciaux ou retraites corporatives!
Le Chalet Golden Bear est un lieu idéal pour des événements spéciaux, tels que des mariages, anniversaires et retraites corporatives. Notre capacité d’accueil totale peut atteindre 96 personnes, réparties dans nos 8 chalets, tous situés à moins de 5 minutes à pied :
- Chalet Silver Fox (12 personnes)
- Chalet White Wolf (12 personnes)
- Chalet Blue Jay (12 personnes)
- Chalet Red Deer (12 personnes)
- Chalet White Rabbit (8 personnes)
- Chalet Golden Bear (16 personnes)
- Chalet Black Eagle (12 personnes)
- Chalet Grey Goose (12 personnes)
Pour plus d’informations, veuillez consulter notre section entreprise.
- PRINCIPALES CARACTÉRISTIQUES:18 personnes
6 chambres
3 salles de bain
Piscine chauffée (de juin à fin sept)
Spa 8 pers. (toute l'année)
Sauna sec extérieur 8 places (toute l'année)
Piscine intérieure chauffée (tout l'année)
Table de billard
Table de Ping Pong
Table de Poker
Animaux
acceptés
Wifi haute-vitesse
Borne de recharge pour véhicule électrique
Foyer
intérieur
Foyer
extérieur
Air
climatisé
Événements
et autres
Embarcations fournies (de mai à oct)
Terrain de tennis
Patinoire (en hiver)
Prêt de raquettes de randonnée
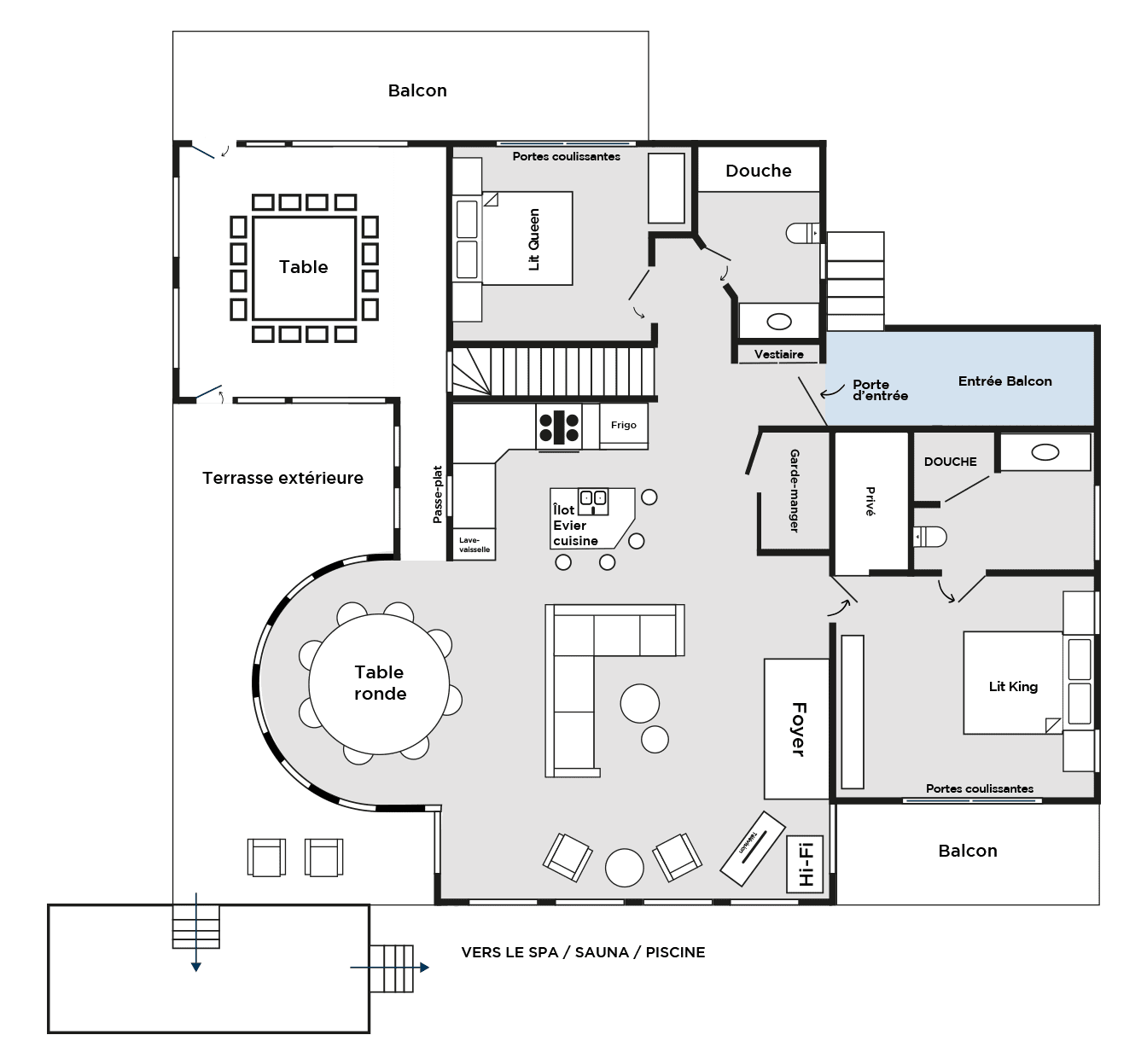
- À l'étage
Vous retrouverez au premier étage:
- un grand salon de style contemporain avec foyer au bois
- une cuisine très bien équipée avec un îlot central idéal pour cuisiner et/ou pour partager de bons moments en famille ou entre amis
- la chambre des maîtres avec 1 lit King et sa salle de bain complète
- une grande chambre avec 1 lit Queen et sa salle de bain complète
- une salle à manger avec une grande table à manger arrondie pour 8 à 10 personnes, dans une rotonde vitrée
- une autre salle à manger avec une grande table à manger carrée pour 16 personnes, convertible en table de conférence, dans une pièce entièrement vitrée sur la forêt environnante
- accès à la galerie extérieure en bois avec BBQ et 2 grandes tables à manger avec bancs
- Au rez-de-jardin
Au rez-de-jardin se trouvent :
- une grande salle de jeu avec table de billard convertible en table de ping pong
- un coin bar avec des tabourets et un 2e réfrigérateur
- un salon de détente avec TV satellite, système de son cinéma maison et canapé sectionnel
- 2 chambres avec 1 lit Queen chacune
- 1 chambre avec 2 lits Queen et 1 canapé convertible en lit Queen très confortable
- 1 chambre bureau avec 1 canapé convertible en lit Queen très confortable
- une salle de bain privée avec douche
- accès au niveau jardin avec la piscine extérieure chauffée et sa grande terrasse de 800 pieds carrés clôturée, le spa 6 places et le sauna sec extérieur 8 places, le coin feu et détente
Vous avez également accès au lac Fiddler, situé à moins de 10 minutes à pied. En option ($), vous avez maintenant accès aux activités du Centre récréatif du Domaine du Lac Fiddler. En hiver : accès à la patinoire, prêt de raquettes pour la randonnée, piscine intérieure chauffée. En été : accès au quai et aux embarcations (kayaks, canots, planches à pagaie et pédalos), piscine intérieure et extérieure, cours de tennis et jeux extérieurs pour les enfants.
Entièrement équipée
- Micro-ondes
- Lave-vaisselle
- Machine Nespresso (petites capsules)
- Machine à café Keurig
- Machine à café filtre
- Machine à café Bodum (presse française)
- 2 services à fondue
- 2 services à raclette
- Blender
- 3 grilles-pain
- 2 réhausseurs de siège pour bébés fournis
- 1 lit King
- 5 lits Queen
- 2 canapés convertible Queen
- Literie de qualité hôtel 5 étoiles
- Serviettes de toilette fournies (apportez vos serviettes pour la baignade et le spa)
- Deux lits (parcs) pour bébés fournis
- Sèche-cheveux disponible dans chaque salle de bain
- Accès au lac Fiddler
- Spa 8 places
- Sauna sec extérieur 8 places avec vue panoramique
- Piscine extérieure chauffée de début juin à fin septembre
- Coin feu et détente avec chaises Adirondack confortables (apportez votre bois)
- BBQ (propane inclus) disponible à l’année et 2 grandes tables extérieures avec bancs disponible entre avril et octobre
- Une grande salle de jeu avec table de billard et ping pong
- Espace buanderie avec laveuse et sécheuse
- Endroit parfait pour les réceptions (mariages, anniversaires, etc.) et les événements d’entreprise
- Télévision intelligente connectée Netflix et programmation satellite
- Wi-Fi inclus
- Cinéma maison avec système de son
- Deuxième système de son avec connexion Bluetooth
Vous retrouverez au rez-de-jardin:
- un grand salon de style contemporain avec foyer au bois et système de son Bluetooth pour écouter votre musique préférée;
- une cuisine très bien équipée avec un îlot central idéal pour cuisiner et/ou pour partager de bons moments en famille ou entre amis;
- une salle à manger pour 10 personnes
- un splendide solarium avec une autre salle à manger avec grande table pour 16 personnes convertible en salle de conférence;
- la chambre des maîtres avec lit King et sa salle de bain complète. Toute la literie est en pur coton et les couettes sont en duvet synthétique (hypoallergène);
- une chambre avec lit Queen et salle de bain attenante
- accès à la galerie extérieure en bois avec BBQ et 2 grandes tables à manger avec bancs
Le chalet possède un chauffage central à air chaud poussé au premier étage et un système de chauffage avec plinthes électriques au rez-de-jardin. Le chalet est climatisé en été.

- Tarif de base et frais additionnels:
- Le tarif de base est pour 4 personnes ou moins (frais additionnel de 50 $ par nuit et par personne supplémentaire en basse saison ou de 100 $ par nuit et par personne supplémentaire en haute saison).
- Un frais de ménage de 325$ s’applique pour toute location.
- Nous acceptons les animaux (2 maximum par location) mais un frais de 125$ par animal s’applique pour le nettoyage hypoallergène à votre départ.
- Durée minimale de séjour:
- Un minimum de 2 nuitées s’applique en tout temps.
- Nous ne faisons pas de location à la journée.
- Fins de semaine :
- Les locations se font du vendredi au dimanche (ou du vendredi au lundi, ou du jeudi au dimanche).
- Aucune arrivée et aucun départ ne se fait les samedis.
- Nombre de personnes:
- Les clients s’engagent à respecter le nombre de personnes prévu dans l’entente de location.
- Une surveillance stricte du nombre d’occupants est appliquée. Une pénalité de 150$ par nuitée sera déduite du dépôt pour toute personne non déclarée sur l’entente de location.
- Formalités de paiement:
- Un dépôt minimal de 50% du montant total incluant les taxes est requis par carte de crédit lors de la réservation pour confirmer votre réservation dans notre système et bloquer les dates dans le calendrier.
- Le paiement final des frais de séjour (balance de paiement de 50%) sera prélevé automatiquement sur la carte de crédit au dossier 30 jours avant votre date d’arrivée.
- Un dépôt de sécurité remboursable de 3000$ sera temporairement gelé sur votre carte de crédit 48h avant la date d’arrivée et sera relâché dans les 24h/48h suivant votre départ, si aucun dommage n’est constaté et si le chalet est remis dans le même état qu’à l’arrivée.
- Autres frais applicables:
- Un frais administratif de 4% s’applique sur les paiements par carte de crédit.
- Un frais bancaire de 60$ s’applique pour les transferts de fonds internationaux.
- Heures d’arrivée et de départ pour le Chalet Golden Bear:
- L’heure d’arrivée est après 18h.
- L’heure de départ à 13h.
Veuillez prendre note des règlements du chalet, applicable à l’ensemble des participants :
1. Il est strictement interdit de fumer à l’intérieur du chalet. Il est toutefois permis de fumer à l’extérieur du chalet (une pénalité de 1000$ s’applique en cas de non-respect de cette règle);
2. Pour des raisons de sécurité, de respect du voisinage et de capacité des installations septiques et sanitaires, nous exigeons que le nombre de personnes qui figure sur l’entente soit respecté en tout temps par les locataires. Un maximum de 2 invités additionnels est autorisé durant le jour (hors période de pandémie), mais le nombre de personnes qui restent à coucher doit être conforme à ce qui est indiqué sur l’entente (surveillance stricte sur place s’applique);
3. Le Domaine du Lac Fiddler est un site de villégiature ou la tranquillité est de mise. L’usage des VR, VTT, Skidoos, motos et motocross est strictement interdit. Vous pouvez apporter vos motos sur une remorque pour les utiliser à l’extérieur du domaine (une pénalité de 500$ s’applique en cas de non-respect de cette règle);
4. Les feux d’artifice sont interdits en tout temps sur le domaine à cause des risques élevés d’incendie et de la nuisance sonore (une pénalité de 1000$ s’applique en cas de non-respect de cette règle);
5. Aucun système de son extérieur n’est autorisé à l’extérieur du chalet et/ou sur le quai (une pénalité de 500$ s’applique en cas de non-respect de cette règle et plainte du voisinage);
6. Le Lac Fiddler est un lac écologique et les embarcations à moteur ne sont pas autorisées. Pour éviter la contamination des algues bleues en provenance d’autres lacs, toute mise à l’eau d’une embarcation autre que celles fournies est interdite;
7. Les feux à ciel ouvert sont strictement interdits. Les feux extérieurs doivent être faits dans le foyer prévu à cet usage (une pénalité de 1000$ s’applique en cas de non-respect de cette règle);
8. L’installation de tentes et/ou de camping-car ou caravanes sur le domaine est strictement interdit;
9. Nous ne pouvons être tenu responsables de tout accident dans le chalet, le SPA, la piscine, sur le terrain et au lac;
10. Toute sous-location est strictement interdite;
11. La quiétude des lieux doit être respectée en tout temps. Aucun bruit excessif à l’extérieur après 22h (incluant la piscine, le SPA et le sauna);
Noter qu’en cas de non-respect de ces règles, nous nous réservons le droit de retenir le dépôt de sécurité. En réservant directement sur notre site ou sur tout autre plateforme partenaire, vous êtes réputé avoir pris connaissance et accepté de vous conformer à ces règlements, ainsi que toutes les personnes qui vous accompagnent.
Le Chalet Golden Bear (74) est situé au sein du prestigieux Domaine du Lac Fiddler dans la magnifique région des Laurentides. Le domaine est situé à quelques kilomètres du village de Morin Heights, à seulement 1 heure de Montréal. Le Chalet Golden Bear est géré indépendamment du Resort mais a accès aux installations et aux activités du Resort.













































































































































































































































































































































































