ChaletKabana






Chalet Kabana (Peut accueillir 6 personnes)
Splendide chalet au design résolument moderne, situé à 5 minutes du village de Sainte-Émélie de l’Énergie avec un accès privé au Lac Beaudoin (sans moteur), à seulement 75 minutes de Montréal. Ce chalet construit sur 2 étages possède 2 chambres et peut héberger jusqu’à 6 personnes de façon très confortable. Le chalet est équipé d’un spa et d’un sauna sec extérieur (disponibles toute l’année). Durant la saison estivale (de Mai à Octobre), vous avez accès à un quai privé pour la baignade et 2 kayaks, 1 canot et 1 pédalo sont fournis. La Chalet Kabana est situé sur un grand terrain boisé privé de 41 000 pi2, ce qui en fait un endroit très paisible à l’abri des regards indiscrets. La connexion Wi-Fi est incluse.
Le chalet possède un chauffage avec plinthes électriques et il est protégé par un système d’alarme relié à la centrale ainsi que d’un système de caméra à l’entrée. Il est vivement conseillé de vous rendre au chalet avec un véhicule 4 roues motrices en hiver, car même si le chalet est très bien déneigé en permanence, son chemin d’accès est en pente et peut occasionner des inconvénients.
- PRINCIPALES CARACTÉRISTIQUES:6 pers.
2 chambres fermées
1 salle de bain
Spa 5 pers. (tout l'année)
Sauna extérieur 8 places (toute l'année)
Foyer
extérieur
Wi-Fi
Embarcations fournies (de mai à oct)
Animaux
acceptés
Événements
et autres
- A l'étage
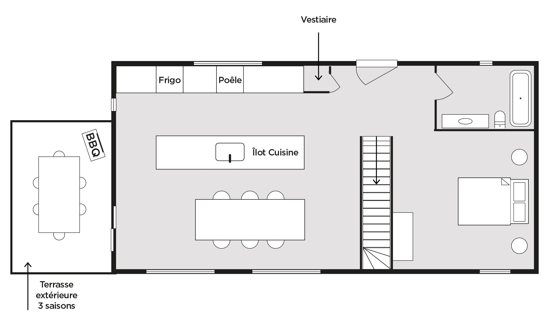
L’entrée du chalet se fait par l’étage supérieur. En entrant dans le chalet, vous trouverez un vestiaire dans l’entrée, une grande cuisine moderne toute équipée (incluant lave-vaisselle, divers équipements pour cuisiner, vaisselle pour enfants, cafetières filtre et Nespresso Original Line) et une grande salle à manger pour 6 personnes avec de hauts plafond de 10 pieds et une vue panoramique époustouflante sur le lac.
Sur le même étage, vous trouverez aussi une salle de bain complète avec bain/douche pluie (serviettes fournies, apportez vos serviettes pour le spa et la baignade) et une belle chambre fermée avec lit Queen à baldaquin et vue sur le lac.
Disponible durant la belle saison, une véranda 3 saisons vous offre un espace de détente à l’abri des moustiques, où vous pouvez prendre vos repas et profiter de la vue. Cette terrasse dispose d’un barbecue au propane fonctionnel et accessible toute l’année ravira les amateurs de grillades en toutes saisons.
- Au rez-de-jardin
Au niveau du rez-de-jardin se trouve un grand salon avec vue superbe sur le lac et divan convertible en lit double, ainsi que 2 fauteuils, TV HD, Bell Express VU, Wifi gratuit, divers jeux de société, système de son Bluetooth et un foyer électrique d’ambiance. Nous profitons d’un excellent réseau cellulaire 3G/4G dans le secteur pour votre cellulaire.
En arrière du salon, une grande chambre à coucher très confortable avec un lit format Queen et garde robe pour ranger vos effets personnels. Toute la literie est en pur coton et les couettes sont en duvet synthétique (hypoallergène). Le chalet est chauffé par des plinthes électriques. Laveuse/sécheuse & aspirateur sur place.
Une porte fenêtre coulissante donne accès à la grande terrasse au niveau rez-de-jardin avec son SPA encastré de 5 places (déneigé et accessible à l’année longue), don sauna sec de 8 places et l’escalier d’accès au lac en contre-bas du chalet.
- À l'extérieur
La grande terrasse au niveau rez-de-jardin du chalet dispose d’un SPA encastré de 5 places (déneigé et accessible à l’année longue). Une véranda 3 saisons, protégée par des moustiquaires, sert de coin repas extérieur pour 6 personnes durant la belle saison. Un BBQ au gaz propane est accessible et fonctionnel à l’année longue.
Accessible par un escalier (non déneigé en hiver en raison de la forte pente du terrain), vous accédez au lac en contre bas du chalet et à un grand quai privé avec chaises pour relaxer, 2 kayaks, 1 canot, 1 pédalo et 4 gilets de sauvetage pour adultes. Un coin feu extérieur (avec bois fourni, apportez votre papier journal, petit bois d’allumage) est aménagé près du lac et accessible 3 saisons (lui aussi non déneigé en hiver en raison de la forte pente du terrain).
Le stationnement extérieur peut accueillir jusqu’à 4 voitures. Il est vivement conseillé de vous rendre au chalet avec un véhicule 4 roues motrices en hiver, car même si le chalet est très bien déneigé en permanence, son chemin d’accès est en pente et peut occasionner des inconvénients.
- AutresLe Chalet Kabana est certifié par la Corporation de l'Industrie Touristique du Québec (CITQ). Permis CITQ #301363
Entièrement équipée
- Micro-ondes
- Lave-vaisselle
- Machines à café Nespresso (petites capsules)
- Machine à café filtre
- Machine à café Bodum
- Service à fondue
- Service à raclette
- Blender
- Grille-Pain
- 1 chaise haute pour bébé disponible
- Chambre 1 : une grande chambre avec lit Queen (1er étage)
- Chambre 2 : une grande chambre avec lit Queen (niveau rez-de-jardin)
- Toute la literie fournie est en pur coton et les couettes sont en duvet synthétique (pas de plumes)
- Serviettes de toilette fournies (apportez vos serviettes pour le spa et le sauna)
- 1 sèche-cheveux disponible dans la salle de bain
- Accès direct au Lac Beaudoin avec quai privé, idéal pour la baignade et le kayak
- 2 kayaks et 1 pédalo inclus, disponibles de début mai à mi-octobre.
- Gilets de sauvetage pour le kayak
- Spa de 5 places
- Coin repas à l’extérieur dans la véranda (3 saisons)
- Foyer extérieur pour le plein air (bois fourni)
- Barbecue propane fonctionnel à l’année avec 1 bouteille de rechange
- Buanderie avec laveuse et sécheuse
- Stationnement pour quatre voitures
- Vestiaire à l’entrée
- Le chalet est chauffé par des plinthes électriques avec un échangeur d’air
- Connexion Wi-Fi incluse
- Télévision Haute Définition (avec Bell Express Vu et lecteur Blu-Ray)
- Système de son avec Bluetooth
- Système d’alarme relié à la centrale ainsi que d’un système de caméra à l’entrée.
L’entrée du chalet se fait par l’étage supérieur. En entrant dans le chalet, vous trouverez un vestiaire dans l’entrée, une grande cuisine moderne toute équipée (incluant lave-vaisselle, divers équipements pour cuisiner, vaisselle pour enfants, cafetières filtre et Nespresso Original Line) et une grande salle à manger pour 6 personnes avec de hauts plafond de 10 pieds et une vue panoramique époustouflante sur le lac.
Sur le même étage, vous trouverez aussi une salle de bain complète avec bain/douche pluie (serviettes fournies, apportez vos serviettes pour le spa et la baignade) et une belle chambre fermée avec lit Queen à baldaquin et vue sur le lac.
Disponible durant la belle saison, une véranda 3 saisons vous offre un espace de détente à l’abri des moustiques, où vous pouvez prendre vos repas et profiter de la vue. Cette terrasse dispose d’un barbecue au propane fonctionnel et accessible toute l’année ravira les amateurs de grillades en toutes saisons.

- Tarif de base et frais additionnels:
- Le tarif de base est pour 4 personnes ou moins (rais additionnel de 50 $ par nuit et par personne supplémentaire en basse saison ou de 100 $ par nuit et par personne supplémentaire en haute saison).
- Un frais de ménage de 180$ s’applique pour toute location.
- Nous acceptons les animaux (2 maximum par location) mais un frais de 125$ par animal s’applique pour le nettoyage hypoallergène à votre départ.
- Durée minimale de séjour:
- Un minimum de 2 nuitées s’applique en tout temps.
- Nous ne faisons pas de location à la journée.
- Fins de semaine :
- Les locations se font du vendredi au dimanche (ou du vendredi au lundi, ou du jeudi au dimanche).
- Aucune arrivée et aucun départ ne se fait les samedis.
- Nombre de personnes:
- Les clients s’engagent à respecter le nombre de personnes prévu dans l’entente de location.
- Une surveillance stricte du nombre d’occupants est appliquée. Une pénalité de 150$ par nuitée sera déduite du dépôt pour toute personne non déclarée sur l’entente de location.
- Formalités de paiement:
- Un dépôt minimal de 50% du montant total incluant les taxes est requis par carte de crédit lors de la réservation pour confirmer votre réservation dans notre système et bloquer les dates dans le calendrier.
- Le paiement final des frais de séjour (balance de paiement de 50%) sera prélevé automatiquement sur la carte de crédit au dossier 30 jours avant votre date d’arrivée.
- Un dépôt de sécurité remboursable de 1000$ sera temporairement gelé sur votre carte de crédit 48h avant la date d’arrivée et sera relâché dans les 24h/48h suivant votre départ, si aucun dommage n’est constaté et si le chalet est remis dans le même état qu’à l’arrivée.
- Autres frais applicables:
- Un frais administratif de 4% s’applique sur les paiements par carte de crédit.
- Un frais bancaire de 60$ s’applique pour les transferts de fonds internationaux.
- Heures d’arrivée et de départ pour le Chalet Kabana:
- L’heure d’arrivée est après 18h
- L’heure de départ à 13h.
Veuillez prendre note des règlements du chalet, applicable à l’ensemble des participants :
1. Il est strictement interdit de fumer à l’intérieur du chalet. Une pénalité de 1000$ s’applique en cas de non respect de cette règle. Il est toutefois permis de fumer à l’extérieur du chalet;
2. Pour des raisons de sécurité, de respect du voisinage et de capacité des installations septiques et sanitaires, nous exigeons que le nombre de personnes qui figure sur l’entente soit respecté en tout temps par les locataires. Un maximum de 2 invités additionnels est autorisé durant le jour (hors période de pandémie), mais le nombre de personnes qui restent à coucher doit être conforme à ce qui est indiqué sur l’entente (surveillance stricte sur place s’applique);
3. Les feux d’artifice sont interdits en tout temps sur le domaine à cause des risques élevés d’incendie et de la nuisance sonore;
4. Aucun système de son extérieur n’est autorisé à l’extérieur du chalet et/ou sur le quai;
5. Les feux à ciel ouvert sont strictement interdits. Les feux extérieurs doivent être faits dans le foyer prévu à cet usage;
6. L’installation de tentes et/ou de camping-car ou caravanes sur le domaine est strictement interdit;
7. Nous ne pouvons être tenu responsables de tout accident dans le chalet, le SPA, sur le terrain et au lac;
8. Toute sous-location est strictement interdite;
9. La quiétude des lieux doit être respectée en tout temps. Aucun bruit excessif à l’extérieur après 22h (incluant le SPA et le sauna);
Noter qu’en cas de non-respect de ces règles, nous nous réservons le droit de retenir le dépôt de sécurité. En réservant sur notre site ou toute autre plateforme partenaire, vous êtes réputé avoir pris connaissance et accepté de vous conformer à ces règlements, ainsi que toutes les personnes qui vous accompagnent.
Le Chalet Kabana est situé sur le territoire de la Municipalité de Sainte-Émélie de l’Énergie, dans Lanaudière, à seulement 1 heure de Montréal.
Conseil : le chalet est très bien déneigé l’hiver par notre équipe de maintenance mais comme il est situé dans un domaine en forêt avec des petits chemins en pente, nous vous conseillons d’opter pour un véhicule AWD (4 roues motrices) ou un VUS durant les mois d’hiver. Assurez-vous que votre véhicule soit équipé de pneus neige et d’avoir (au besoin) des Traction-Aid avec vous.

































































































































































































